1F 白ホリスタジオConcept
アマチュアからプロまで対応できる本格的な白ホリスタジオ。
ストロボ/ソフトボックス…照明機材も多数完備(追加レンタル有)
モデル撮影から商品撮影と様々な撮影が可能。
同フロアにメイクルーム完備。駐車場から直接搬入が可能の為、快適な撮影ができます。
Photosスタジオ写真
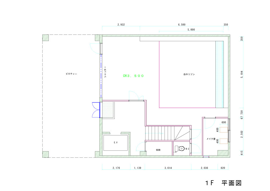
Drawing1Fスタジオ図面
YouTube
アマチュアからプロまで対応できる本格的な白ホリスタジオ。
ストロボ/ソフトボックス…照明機材も多数完備(追加レンタル有)
モデル撮影から商品撮影と様々な撮影が可能。
同フロアにメイクルーム完備。駐車場から直接搬入が可能の為、快適な撮影ができます。